| 沿線・最寄り駅 | 琴電琴平線(栗林公園駅)徒歩 約16分 |
| 所在地 | 高松市今里町二丁目26番地3 |
| 地 目 | 宅地 |
| 価 格 | 2,650万円 |
物件詳細
物件写真
物件詳細
| 土地面積 | 93.23㎡(約28.20坪) |
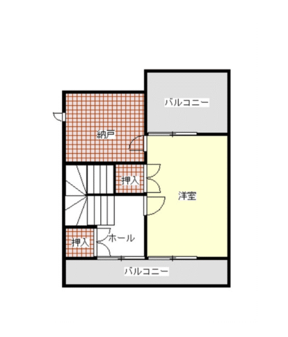
| 建物面積 | 1階:38.05㎡(約11.51坪) 2階:48.98㎡(約14.82㎡)3階:32.34㎡ 合計:119.37㎡(約36.11坪) |
| 地 目 | 宅地 |
| 建物構造 | 軽量鉄骨造ストレート葺3階建 |
| 敷地権利 | 所有権 |
| 都市計画 | 非線引き |
| 用途地域 | 第二種中高層専用住居地域 |
| 建蔽率 | 60% |
| 容積率 | 200% |
| 引渡時期 | 相談 |
| 現 況 | 空家 |
| 道 路 | 北側道路(幅員 約6.0m 接面 約9.0m) |
| 駐 車 場 | 有 |
| 設備・条件 | トイレ二ヶ所、上下水道、都市ガス、床暖房 |
| 備考 | ※R7年 外壁塗装・屋上防水工事・風呂給湯器交換済み 価格改定しました。 |
| 取引形態 | 専任媒介 |